Beschrijving
Welkom aan de Peppellaan 19 in Aadorp! Ben jij op zoek naar een huis waar alles om comfort, ruimte én een groot gevoel van vrijheid draait? Check dan even goed wat dit vrijstaande woonhuis jou te bieden heeft. Peppellaan 19 is een heerlijke bungalow, gelegen in het rustieke Aadorp, die moeiteloos past bij zowel starters met plannen als bij ouderen die nu écht willen gaan genieten. Dit is geen standaard huis, maar echt zo’n plek waar je je meteen thuis voelt. Ga je mee op ontdekking?
Dat vrije gevoel begint al op de royale oprit, die trouwens ruimte biedt aan makkelijk meerdere auto’s. De garage heeft een smeerput voor de hobbyklusser, wasmachine- én drogeraansluiting (handig!), een keukenblok en een vliering waar je alle seizoensspullen kwijt kunt.
Unieke schuur mét sfeer: Nu komt het: achterop het perceel vind je een royale schuur van maar liefst 8 bij 18 meter. Hij is nu in gebruik als écht café, inclusief biljart, een eigen biertap en zelfs een heuse discobar. Hoe gaaf is dat? Gezellige borrels, familiefuifjes of dat feestje waar iedereen later over praat – het kán hier gewoon! Je hoeft echt niet meer de deur uit voor een fijn avondje met vrienden.
Indeling
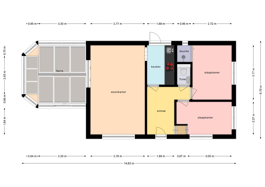
Begane grond: entree, ruime hal, meterkast is vernieuwd, toiletruimte met wandcloset en fonteintje (2020), garderobe, dichte keuken met diverse inbouwapparatuur (2020), o.a. een koelkast, vaatwasser, oven, inductie kookplaat en een afzuigkap, sfeervolle lichte woonkamer met aangebouwde serre (2000), ouderslaapkamer met doucheruimte (2020), 2e slaapkamer met inbouwkast en een wastafel;
Eerste verdieping
via vlizotrap naar de zolderverdieping
Bijzonderheden
• goed onderhouden vrijstaand woonhuis, type bungalow, met serre, royale oprit en grote garage met wasruimte
• zeer royale schuur van maar liefst 8 bij 18 meter
• in gebruik als écht café, inclusief biljart, een eigen biertap en zelfs een heuse discobar
• vrijstaande garage met smeerput, keukenblok, wasruimte en vliering
• op een perceel van maar liefst 940 m²
• sfeervolle tuin rondom met een prieeltje, tuinaanleg voorzijde 2021
• cv-ketel Nefit (2019), gedeeltelijke vloerverwarming in de hal, keuken en serre
• energielabel E
• kom genieten van dit sfeervolle woonhuis en maak een afspraak voor een bezichtiging!
Je makelaar voor deze bijzondere woning met bijgebouw is Jeannette Schollink
Plattegronden
178393366_aadorp_floor_1_first_design_20251026_ffa95d.jpg
178393366_aadorp_feest_schuur_first_design_20251026_a22915.jpg
178393366_aadorp_garage_first_design_20251026_500adf.jpg
178393366-289992292-ne-141950536-1761486079347.jpg