Beschrijving
Ben jij op zoek naar jouw allereerste huis, of groeit je gezin uit z'n jasje en wil je graag alles wat je nodig hebt binnen handbereik? Deze ruime eengezinswoning aan de Duindoornstraat 62 in Almelo heeft maar liefst 3 slaapkamers (en de mogelijkheid voor een 4e!), een moderne afgewerkte keuken en badkamer en een diepe zonnige achtertuin maken dit huis tot een ideale plek voor jonge gezinnen en starters die gewoon lekker willen wonen.
De woning heeft 3 ruime slaapkamers op de eerste verdieping. De tweede verdieping heeft een dakkapel die zich uitstrekt over de gehele breedte. Daardoor is niet alleen de zolder heerlijk licht, maar krijg je er praktisch nóg een grote kamer bij. Hier bevindt zich ook de wasmachine- en drogeraansluitingen.
De cv-ketel is van 2020 en wordt gehuurd; een gerust gevoel dat je de komende jaren niet met onvoorziene kosten zit. Energielabel C.
Heb je groene vingers? Of droom je misschien van lange zomeravonden met je vrienden op het terras? Dan zit je hier wel goed, want deze woning heeft een diepe achtertuin die is gelegen op het zuidoosten. Lekker veel zon, dus! Of je nu ‘s ochtends wil ontbijten in de zon of ‘s avonds een barbecue organiseert, het kan hier allemaal. Achter de tuin vind je nog een stenen berging voor je fietsen of spullen.
Bij deze woning voel je je al gauw thuis. Grijp je kans en plan snel een bezichtiging. Wie weet word jij binnenkort de nieuwe eigenaar van deze fijne eengezinswoning aan de Duindoornstraat 62, waar ruimte en gezelligheid samenkomen! www.duindoornstraat62.nl
Indeling
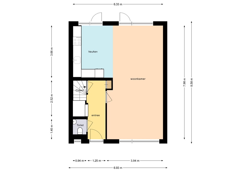
Begane grond; entree, hal, toiletruimte, kelder-/provisieruimte, meterkast, trapopgang, lichte woonkamer, moderne open keuken met diverse inbouwapparatuur, o.a. een koelkast, vaatwasser, oven, gaskookplaat en een afzuigkap, deur naar het zonnige terras. De begane grond is voorzien een mooie laminaatvloer;
Eerste verdieping
overloop, 3 slaapkamers, de moderne badkamer is voorzien van een wastafelmeubel, douche en een tweede toilet;
Tweede verdieping
Via vaste trap bereikbaar naar de ruime zolderverdieping met een over de gehele breedte een royaal dakkapel, stook- en wasruimte is er op deze verdieping.
Bijzonderheden
• ruime eengezinswoning met 3 slaapkamers
• nabij gezellige binnenstad van Almelo én scholen/voorzieningen zijn dichtbij
• volop parkeermogelijkheid voor de deur
• Remeha Tzerra CV-ketel 2020 wordt gehuurd, € 39,81 per maand (inclusief periodiek onderhoud)
• diepe zonnige tuin gesitueerd op het zuidoosten
• stenen berging achter de tuin
• nieuwsgierig geworden? Bel snel voor een bezichtigingsafspraak!
Je makelaar voor deze leuke eengezinswoning is Jeannette Schollink
Plattegronden
182226190_duindoorn_floor_1_first_design_20260213_00d153.jpg
182226190_duindoorn_floor_2_first_design_20260213_c3a0d1.jpg
182226190_duindoorn_floor_3_first_design_20260213_2ec896.jpg
182226190-296511085-ne-149245453-1770986692788.jpg
182226190-296511088-ne-149245567-1770986761659.jpg
182226190-296511091-ne-149247217-1770987872379.jpg